Aktualności
Nowe inwestycje WSPiA
2009-12-15
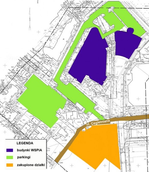
W dniu 19.06.08 r. Wyższa Szkoła Prawa i Administracji zakupiła działki znajdujące się w bezpośrednim sąsiedztwie Zamiejscowego Wydziału Prawa i Administracji w Rzeszowie.
W dniu 19.06.08 r. Wyższa Szkoła Prawa i Administracji zakupiła działki znajdujące się w bezpośrednim sąsiedztwie Zamiejscowego Wydziału Prawa i Administracji w Rzeszowie.
Teren o powierzchni łącznej 38 arów przeznaczony jest na rozbudowę kampusu, w tym na nowe miejsca parkingowe.


